Знайти нерухомість
Місцезнаходження
Вибрати
Чисто
Чисто
Тип нерухомості
Вибрати
Чисто
Ключове Слово
Кімнатів
Ціна
Чисто
Warsaw, Poland АЕРОПОРТ СТАДІОН ПКІН - ПАЛАЦ КУЛЬТУРИ
Marbella, Spain Середземне море ПОРТ СТАРЕ МІСТО АВТОНОМНА СТАНЦІЯ
НАЗАД
Warszawa
Польща
Śródmieście
ul. Leszczyńska
Додати в обране
Видалити з обраного
Додати в обране
Видалити з обраного
  • 3 Кімната
  • 143 m2 Площа
  • 2 Канала
  • 4 ПОВЕРХ
Унікальні апартаменти в Повіслі з двома лоджіями та дизайнерським інтер’єром

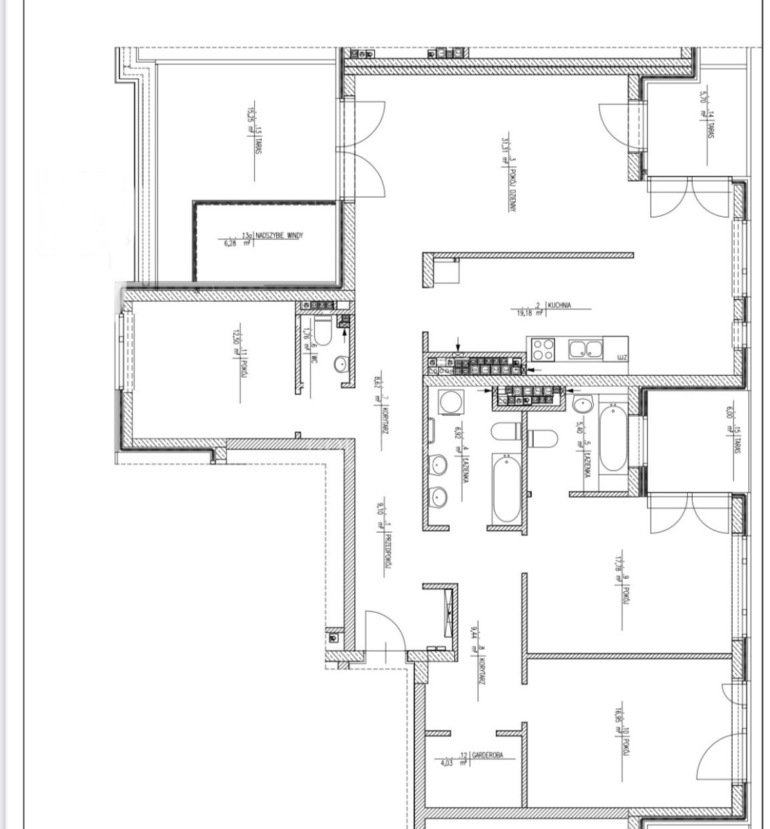
144 м² | 4 кімнати | 2 ванні кімнати | 2 лоджії | 2 паркомісця | комора | рецепція | охорона

Апартаменти розташовані безпосередньо біля набережної Вісли в одному з найпрестижніших житлових комплексів Варшави - Menolly Nowe Powiśle. Ідеальний варіант для тих, хто шукає комфорт, стиль та найвищу якість у самому центрі міста.

Житло знаходиться на другому поверсі. Закрите територія комплексу, цілодобова рецепція, охорона та спільні простори, оздоблені натуральними матеріалами найвищої якості.

Планування апартаментів:
Простора вітальня з панорамними вікнами та виходом на лоджію, відкрита кухня з їдальнею, кімната-кінотеатр з другою лоджією, спальня з власною ванною кімнатою (окрема ванна, біде), додаткова спальня, кабінет, друга ванна кімната з душем, окрема пральня. У коридорі та спальнях - багато вбудованих шаф.

Високий рівень оздоблення:
• Дерев’яні підлоги та меблі на замовлення
• Кухня з закругленими фасадами у стилі 50-х років
• Ванні кімнати з оздобленням шпоном та тиковим деревом
• Двері до стелі, сховані в стіновій обшивці
• Продумане атмосферне освітлення

Локація:
Поруч із набережною Вісли, Elektrownia Powiśle, Центром науки Коперника та бібліотекою Варшавського університету. Поряд численні кафе, ресторани та магазини.

У вартість входить:
• 2 паркомісця в підземному гаражі (за додаткову оплату)
• Комора (входить у вартість)

Апартаменти готові до заселення.
Зв’яжіться з нами, щоб дізнатися більше або домовитися про перегляд.

НЕРУХОМІСТЬ НА ПРОДАЖ

Alona Kuzmychenko
Alona Kuzmychenko
Managing Director
Хочу продати / здати в оренду
Особисті дані
Поле обов'язкове для заповнення
Поле обов'язкове для заповнення
Поле обов'язкове для заповнення
Деталі запиту
Мене також цікавить
Хочу купити
Особисті дані
Поле обов'язкове для заповнення
Поле обов'язкове для заповнення
Поле обов'язкове для заповнення
Деталі запиту
Я хочу орендувати
Особисті дані
Поле обов'язкове для заповнення
Поле обов'язкове для заповнення
Поле обов'язкове для заповнення
Деталі запиту
Надішліть мені це майно
Особисті дані
Поле обов'язкове для заповнення
Поле обов'язкове для заповнення
Поле обов'язкове для заповнення
Вас зацікавила ця нерухомість
Ми зв'яжемося з Вами найближчим часом. Дякуємо за інтерес, проявлений до наших послуг.
Зв'яжіться з нами
Домовтеся про перегляд або запросіть інформацію зі списку обраного
Особисті дані
Поле обов'язкове для заповнення
Поле обов'язкове для заповнення
Поле обов'язкове для заповнення
Додати в обране Обране
Особисті дані
Поле обов'язкове для заповнення
Поле обов'язкове для заповнення
Поле обов'язкове для заповнення
Ваш улюблений список
Ви відправляєте список обраного на вашу електронну пошту. Дякуємо за інтерес до наших послуг.

Наш офіс

Rezydencja Foksal
M. Kopernika 5, lok.7
00-367 Warszawa

info@goldenkey.pl
+48 881 201 123
goldenkey.pl

Ви додали пропозицію в список обраного
Ви видалили пропозицію зі списку обраного
Приймаю політику конфіденційності персональних даних та даю згоду на обробку персональних даних.
Вибрати
Кілька вибраних
Завантажуйте зображення у форматі jpg, png з максимальним розміром 10 мб