Знайти нерухомість
Місцезнаходження
Вибрати
Чисто
Чисто
Тип нерухомості
Вибрати
Чисто
Ключове Слово
Кімнатів
Ціна
Чисто
Warsaw, Poland АЕРОПОРТ СТАДІОН ПКІН - ПАЛАЦ КУЛЬТУРИ
Marbella, Spain Середземне море ПОРТ СТАРЕ МІСТО АВТОНОМНА СТАНЦІЯ
НАЗАД
Warszawa
Польща
Śródmieście
ul. Wioślarska
Додати в обране
Видалити з обраного
Додати в обране
Видалити з обраного
  • 3 Кімната
  • 169 m2 Площа
  • 2 Канала
  • 2 ПОВЕРХ
Ексклюзивні апартаменти у престижному комплексі The Tides на вулиці Віосьлярській з унікальним видом на Віслу та Національний стадіон.
Камерний будинок 2017 року, всього 10 апартаментів, рецепція з цілодобовою охороною та підземний паркінг. The Tides — єдиний житловий комплекс у Варшаві, розташований безпосередньо на березі Вісли.

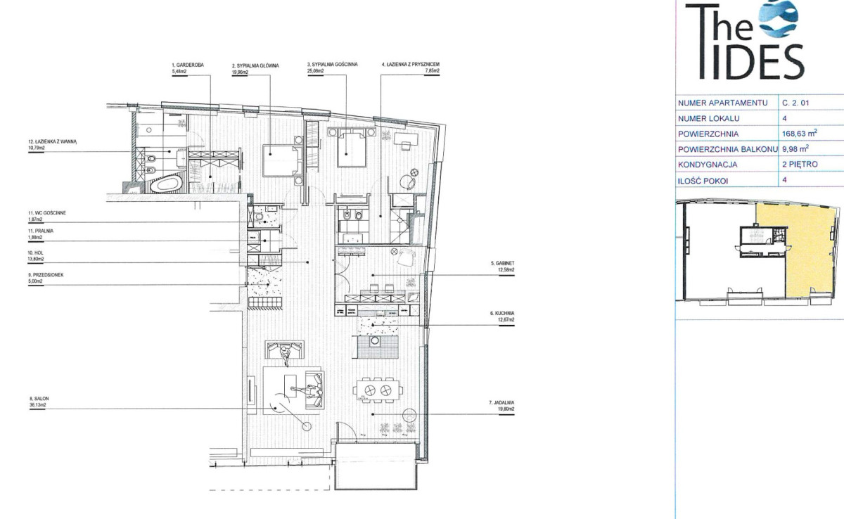
168 м² | 3 спальні | 2 ванні кімнати + гостьовий туалет | тераса | 2 місця на підземному паркінгу

Планування та площі приміщень:

Вітальня - 36,13 м²

Їдальня - 19,80 м²

Кухня - 12,67 м²

Майстер-спальня - 19,96 м² + гардероб - 5,48 м² + ванна кімната - 10,79 м²

Друга спальня - 25,06 м² + ванна кімната - 7,85 м²

Кабінет / гостьова кімната - 12,58 м²

Хол - 18,80 м²

Пральня - 1,88 м²

Туалет - 1,87 м²

Висота стель: 3 м (окрім холу з підвісною стелею). У кухні та ванних кімнатах — підігрів підлоги. Інтер’єр виконаний з використанням високоякісних матеріалів: паркет у ялинку, великоформатна плитка, меблі на замовлення, кондиціонування повітря, система очищення повітря, техніка Gaggenau та Liebherr.

Повна власність із записом у земельному кадастрі. До апартаменту належать два місця на підземному паркінгу (обов’язкова покупка: 200 000 PLN).

Ціна: 9 100 000 PLN + 200 000 PLN за паркінг
Запрошуємо до перегляду та контакту!

НЕРУХОМІСТЬ НА ПРОДАЖ

Alona Kuzmychenko
Alona Kuzmychenko
Managing Director
Хочу продати / здати в оренду
Особисті дані
Поле обов'язкове для заповнення
Поле обов'язкове для заповнення
Поле обов'язкове для заповнення
Деталі запиту
Мене також цікавить
Хочу купити
Особисті дані
Поле обов'язкове для заповнення
Поле обов'язкове для заповнення
Поле обов'язкове для заповнення
Деталі запиту
Я хочу орендувати
Особисті дані
Поле обов'язкове для заповнення
Поле обов'язкове для заповнення
Поле обов'язкове для заповнення
Деталі запиту
Надішліть мені це майно
Особисті дані
Поле обов'язкове для заповнення
Поле обов'язкове для заповнення
Поле обов'язкове для заповнення
Вас зацікавила ця нерухомість
Ми зв'яжемося з Вами найближчим часом. Дякуємо за інтерес, проявлений до наших послуг.
Зв'яжіться з нами
Домовтеся про перегляд або запросіть інформацію зі списку обраного
Особисті дані
Поле обов'язкове для заповнення
Поле обов'язкове для заповнення
Поле обов'язкове для заповнення
Додати в обране Обране
Особисті дані
Поле обов'язкове для заповнення
Поле обов'язкове для заповнення
Поле обов'язкове для заповнення
Ваш улюблений список
Ви відправляєте список обраного на вашу електронну пошту. Дякуємо за інтерес до наших послуг.

Наш офіс

Rezydencja Foksal
M. Kopernika 5, lok.7
00-367 Warszawa

info@goldenkey.pl
+48 881 201 123
goldenkey.pl

Ви додали пропозицію в список обраного
Ви видалили пропозицію зі списку обраного
Приймаю політику конфіденційності персональних даних та даю згоду на обробку персональних даних.
Вибрати
Кілька вибраних
Завантажуйте зображення у форматі jpg, png з максимальним розміром 10 мб