Знайти нерухомість
Місцезнаходження
Вибрати
Чисто
Чисто
Тип нерухомості
Вибрати
Чисто
Ключове Слово
Кімнатів
Ціна
Чисто
Warsaw, Poland АЕРОПОРТ СТАДІОН ПКІН - ПАЛАЦ КУЛЬТУРИ
Marbella, Spain Середземне море ПОРТ СТАРЕ МІСТО АВТОНОМНА СТАНЦІЯ
НАЗАД
Warszawa
Польща
Warszawa
ul. Złota
Додати в обране
Видалити з обраного
Додати в обране
Видалити з обраного
  • 2 Кімната
  • 132 m2 Площа
  • 2 Канала
  • 40 ПОВЕРХ
Luxury apartment located above the 40th floor with a spectacular view in one of the most desirable developments in Warsaw - Złota 44.

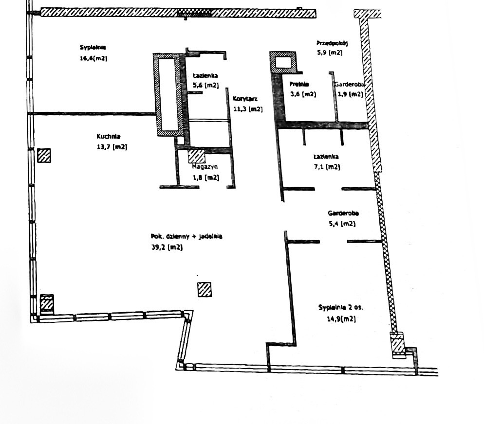
132 m² | 2 bedrooms | 2 bathrooms | high floor | stunning views | underground parking space + storage unit

The 132 m² apartment consists of:

• a living room connected with an open kitchen and dining area,
• a separate master bedroom area with a private bathroom,
• a second bedroom,
• an additional bathroom.

The apartment is furnished and equipped with high-standard furniture, and the Smart Home HMS system allows control of lighting, blinds, heating, and air conditioning.

The storage unit and parking space in the underground garage are available for an additional fee of 200,000 PLN.

On the 8th floor of the building, there is a 1,400 m² recreational and business area available to residents. It includes: a 25-meter swimming pool, a gym with fitness area, a sauna, massage rooms, as well as a private cinema, 2 conference rooms, an outdoor jacuzzi, and a spacious terrace. Residents also have access to a 24-hour reception, concierge services, and security.

Feel free to contact me for more information!

НЕРУХОМІСТЬ НА ПРОДАЖ

Alona Kuzmychenko
Alona Kuzmychenko
Managing Director
Хочу продати / здати в оренду
Особисті дані
Поле обов'язкове для заповнення
Поле обов'язкове для заповнення
Поле обов'язкове для заповнення
Деталі запиту
Мене також цікавить
Хочу купити
Особисті дані
Поле обов'язкове для заповнення
Поле обов'язкове для заповнення
Поле обов'язкове для заповнення
Деталі запиту
Я хочу орендувати
Особисті дані
Поле обов'язкове для заповнення
Поле обов'язкове для заповнення
Поле обов'язкове для заповнення
Деталі запиту
Надішліть мені це майно
Особисті дані
Поле обов'язкове для заповнення
Поле обов'язкове для заповнення
Поле обов'язкове для заповнення
Вас зацікавила ця нерухомість
Ми зв'яжемося з Вами найближчим часом. Дякуємо за інтерес, проявлений до наших послуг.
Зв'яжіться з нами
Домовтеся про перегляд або запросіть інформацію зі списку обраного
Особисті дані
Поле обов'язкове для заповнення
Поле обов'язкове для заповнення
Поле обов'язкове для заповнення
Додати в обране Обране
Особисті дані
Поле обов'язкове для заповнення
Поле обов'язкове для заповнення
Поле обов'язкове для заповнення
Ваш улюблений список
Ви відправляєте список обраного на вашу електронну пошту. Дякуємо за інтерес до наших послуг.

Наш офіс

Rezydencja Foksal
M. Kopernika 5, lok.7
00-367 Warszawa

info@goldenkey.pl
+48 881 201 123
goldenkey.pl

Ви додали пропозицію в список обраного
Ви видалили пропозицію зі списку обраного
Приймаю політику конфіденційності персональних даних та даю згоду на обробку персональних даних.
Вибрати
Кілька вибраних
Завантажуйте зображення у форматі jpg, png з максимальним розміром 10 мб