Find a property
Location
Select
Clear
Clear
Type of property
Select
Clear
Keyword
Rooms
Price
Clear
Warsaw, Poland Aiport Stadium PKIN
Marbella, Spain MEDITERRANEA SEA Port Old Town Bus
BACK
Warszawa
Poland
Śródmieście
Add to favourites
Remove from favourites
Add to favourites
Remove from favourites
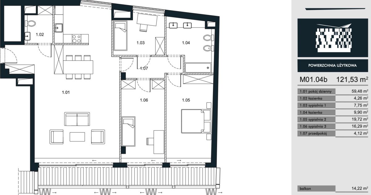
  • 3 Room
  • 122 m2 Area
  • 1 Bathroom
  • 1 Floor
Unique luxury 3 bedroom apartment  in most prestigious Powisle area. 

Dobra32 investment located in the best part of Powiśle and is finished  to the highest standard, with the use of the most modern construction technologies and solutions that ensure high comfort for the residents.

Apartment is located on the 1st floor of the investment, has 122m2 and consists of:
* spacious living room with huge glazing and access to the terrace
* kitchen
* bedroom
* two additional rooms that can be used as a bedroom and/or office
* bathroom with shower and a bathtub
* toilet
* hall with built-in wardrobes.

The apartment includes a parking space in the underground garage, paid extra 150k PLN. 

Finished to a high standard, the apartment is equipped with air-condition in each room. 
The intimacy of the building guarantees great privacy. There are only 18 apartments, thanks to which the building is cozy and provides great intimacy. The reception desk with a concierge provides full comfort in handling correspondence, couriers and verifying guests of the building.

The garage hall is equipped with an advanced automatic car parking system,
while the 2 levels of the underground garage will have traditional parking spaces and independent platforms.

Perfect location.
In the vicinity of the Powiśle Power Plant, the metro station and the Vistula Boulevards, as well as the Copernicus Science Center and BUM. Convenient and quick access to the city center.

PROPERTY FOR BUY

Alona Kuzmychenko
Alona Kuzmychenko
Managing Director
I want to Sell/Let
Personal details
Field is required
Field is required
Field is required
Enquiry details
I’m also interested in
I want to Buy
Personal details
Field is required
Field is required
Field is required
Enquiry details
I want to Rent
Personal details
Field is required
Field is required
Field is required
Enquiry details
Send me this property
Personal details
Field is required
Field is required
Field is required
You are interested in this property
We will contact you as soon as possible. Thank you for your interest in our services.
Contact us
Arrange a viewing or request details from your Favourite’s list
Personal details
Field is required
Field is required
Field is required
Send your Favorites
Personal details
Field is required
Field is required
Field is required
Your favorite list
Your are sendng your Favorite list to your email. Thank you for your interest in our services.

Our Office

Rezydencja Foksal
M. Kopernika 5, lok.7
00-367 Warszawa

info@goldenkey.pl
+48 881 201 123
goldenkey.pl

You have added an offer to your favorites list
You have removed an offer from your favorites list
Accept the privacy policy of personal data and give consent for the processing of personal data
Select
Multiple Selected
Upload pictures in format jpg, png with maximum size of 10 mb